Mixed-use Development for Sale in Paternoster
- 0
Description
Mixed-use Development for Sale in Paternoster
Unmissable Investment: Approved 39-Hectare Mixed-Use Development in Paternoster!
This is your exclusive chance to secure a remarkable investment opportunity in one of South Africa’s premier tourist destinations, brought to you by Infoprop.
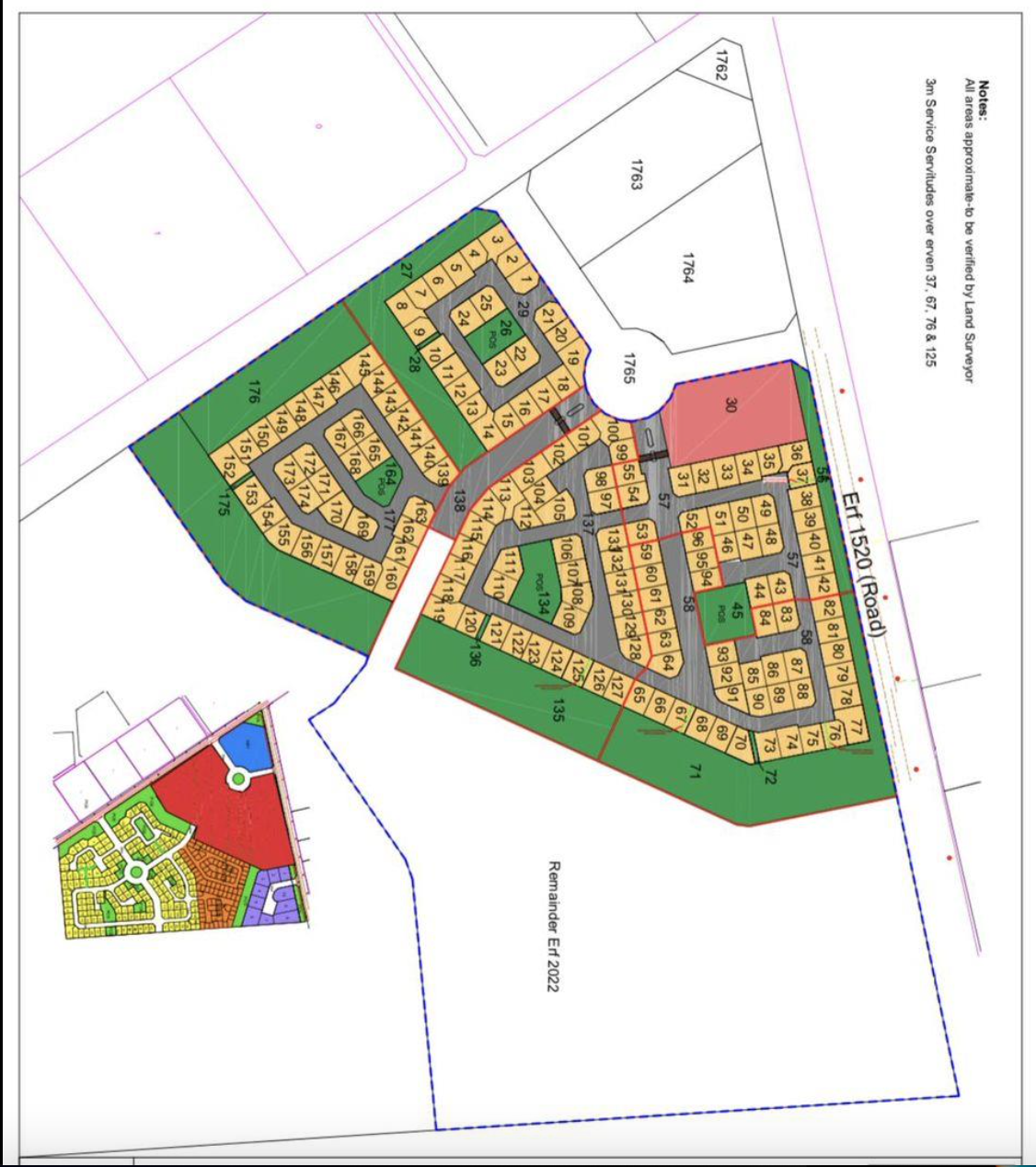
Nestled at the entrance of the legendary fishing village of Paternoster, this expansive 39-hectare property has received the green light for an exciting mixed-use development.
Here’s a glimpse of what’s in store.
Zoning:
1. Residential: Plans for 400 units are currently in the pipeline, promising a thriving residential community.
2. Commercial: We’ve already received intent from well-established commercial groups and various business entities, ensuring a prosperous business hub.
3. Light Industrial: Countless possibilities await to support the exponential growth of Paternoster town, making it an even more vibrant and dynamic locale.
For a deeper dive into this golden opportunity, don’t hesitate to reach out. More details are available upon request. Don’t miss out on this exclusive chance to be a part of the future of Paternoster!